Skip to content
🔥 Catch us at the NC Hot Sauce Festival!
Friday, Sept. 12Â |Â Saturday, Sept. 13
📍 Find us in the Blue Zone, Booth #288
Click Here for More Info
HOME
HOMES FOR SALE
Countryside Farms
Rolling Pines
Woodard’s Dairy
Various Homesites
FLOOR PLANS
GET PRE-QUALIFIED
CONTACT US
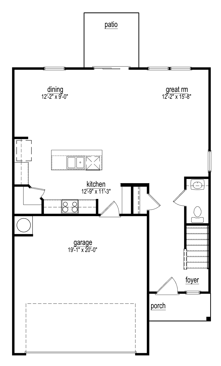
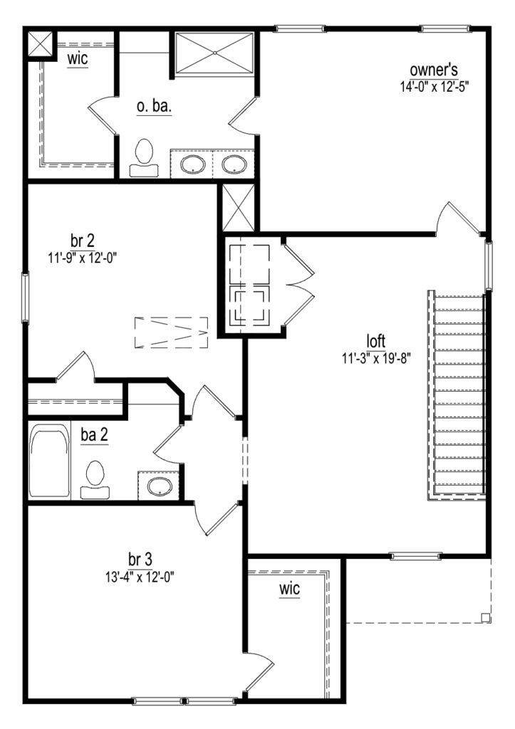
THE MAGNOLIA
THE MAGNOLIA
1,830 Sq.Ft. Home
2-Story
3 Beds
2.5 Baths
2-Car Garage
ELEVATIONS
Elevation A1
Elevation A2
Elevation A2S
Elevation B1
Elevation B2
Elevation B2S
First Floor
Second Floor
START YOUR JOURNEY HOME
HOME
HOMES FOR SALE
Countryside Farms
Rolling Pines
Woodard’s Dairy
Various Homesites
FLOOR PLANS
GET PRE-QUALIFIED
CONTACT US
919-972-1977
Join Our Interest List
New properties are coming soon. Complete the form to request more information and be the first to receive updates as homes become available.
Community Info for:
Woodard's Dairy
Residences at the Park
Rolling Pines
Send